По информации, предоставленной разработчиком проектных решений объекта «Реконструкция здания водонапорной башни по адресу: г.Брест, ул.Карбышева, 16, под административно-торговое здание с помещениями общественного питания и благоустройством прилегающей территории» ОДО «Брестская инженерная группа», на сегодняшний день получено положительное заключение ДРУП «Госстройэкспертиза по Брестской области» по проектной документации.
Заказчиком ООО «Гостевой дом» проводится процедура по выбору генподрядчика для производства строительно-монтажных работ и инженерной организации по комплексному управлению строительством.
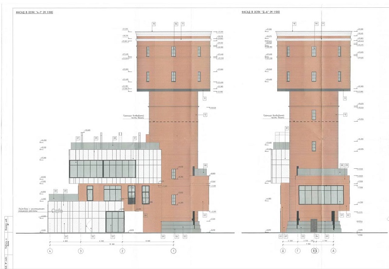
С учетом того, что проектом предусмотрена комплексная подсветка всего здания с использованием контурной LED-подсветки и точечного света, после проведенной реконструкции обновленное сооружение будет гармонично выглядеть как в дневное, так и вечернее время.







Хотите оставить комментарий? Пожалуйста, авторизуйтесь.